email: tony@lathes.co.uk
Home   Machine Tool Archive   Machine-tools Sale & Wanted
Machine Tool Manuals   Catalogues   Belts   Books  Accessories

Sajo Millers UF52, PF52, Duo Mill 52, VF52  APF52

Sajo Models 53 & UF44   Sajo VF54 Vertical & Duo Mill Vertical   

Sajo UF48, UF48P, PF49P   Sajo Model 54

Sajo Manuals and Catalogues available here


Manufactured during the 1960s, The Sajo 52 was offered as the Model PF52, a  Plain Horizontal; the Model PF52, a Universal" machine with a table that could be swing on its vertical axis by up to 45° on each side of central; the Production Model DPF52 with automatic table cycles on its longitudinal feed; the Duo Mill 52, a horizontal and vertical machine that retained the horizontal spindle but was also fitted with a self-powered overarm for vertical work and the Model VF52, a machine stripped of its horizontal capacity and fitted with just the  1200 r.p.m. 
A full specification sheet can be found lower down the page.




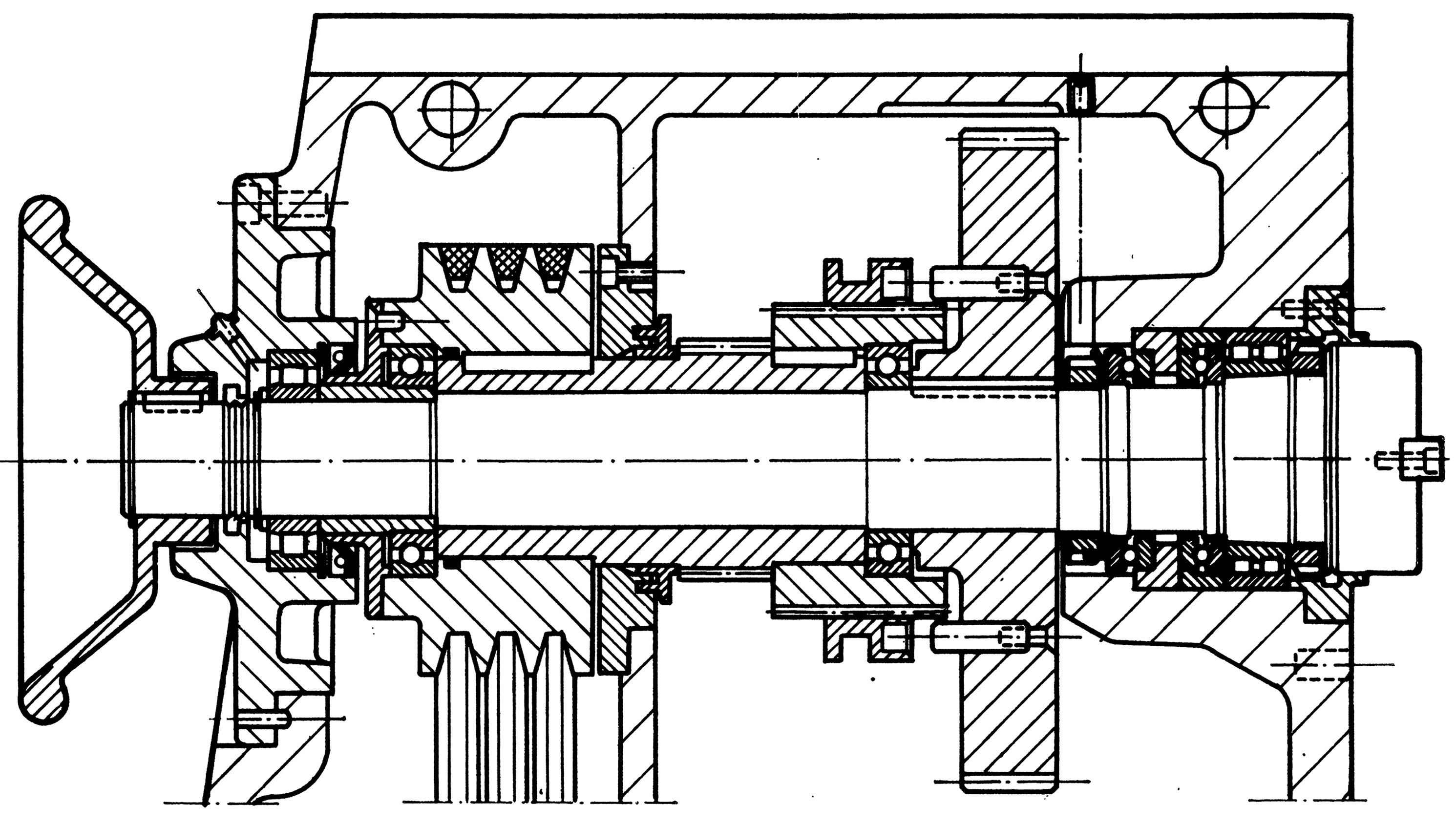
Section through the horizontal spindle

Slotting Head

Swivel-base machine vice

Vertical  that bolted directly to the horizontal spindle. Step-up internal gearing increased
speeds to make them more suitable for the use of small end mills and slot drills

Double-swivel vertical head supported by the end drop bracket

Dividing head with tailstock

Rotary table on an angle-plate base with indexing plate


Sajo Manuals and Catalogues available here

Sajo Models 53 & UF44   Sajo VF54 Vertical & Duo Mill Vertical   

Sajo UF48, UF48P, PF49P   Sajo Model 54



Sajo Millers UF52, PF52, Duo Mill 52, VF52  APF52
email: tony@lathes.co.uk
Home   Machine Tool Archive   Machine-tools Sale & Wanted
Machine Tool Manuals   Catalogues   Belts   Books  Accessories